mar. 2023
Pregătirea terenului și săpături
Curățarea terenului și realizarea săpăturilor pentru fundații, primul pas în construirea ansamblului.

Ansamblu rezidențial intim, cu doar câteva apartamente pe nivel, finisaje premium și acces rapid către punctele de interes din oraș.


Predare în curând
Ultimele apartamente disponibile
Despre ansamblu
Situat în Constanța, zona Palazu, ansamblul de apartamente Mr Lucass îmbină designul modern cu o construcție de calitate, pentru cei care își doresc un cămin confortabil într-o zonă liniștită, dar bine conectată la oraș.
Cu o locație avantajoasă și finalizare în Octombrie 2025, ansamblul oferă atât un cămin, cât și o investiție sigură. Clădirea are o compartimentare eficientă, cu puține apartamente pe nivel, ceea ce se traduce prin mai multă liniște și intimitate pentru locatari.
Compartimentarea este realizată din BCA CELCO, iar tâmplăria Barrier 75 cu feronerie RotoNX asigură o izolare acustică de până la 44 dB, contribuind la confortul termic și fonic al fiecărui apartament.
Fiecare apartament este dotat cu centrală termică proprie, oferind independență energetică și control asupra consumului.
Fațada este placată cu polistiren și accente de lemn, completate de un rastel din lemn/metal înierbat, oferind un aspect modern și îngrijit. La parter, clădirea dispune de o recepție spațioasă de 29 mp și este dotată cu lift pentru acces facil către toate nivelele.
Locurile de parcare sunt disponibile separat, la prețul de 10.000 €, existând 12 locuri supraterane în cadrul complexului. Predarea apartamentelor se va face la cheie, astfel încât viitorii proprietari să se poată muta cu minim de efort.
Clădire modernă
Compartimentare din BCA CELCO și fațadă cu accente de lemn.
Parcare dedicată
12 locuri de parcare supraterane, disponibile separat.
Confort acustic
Tâmplărie Barrier 75, izolare acustică de până la 44 dB.
Încălzire individuală
Centrală termică proprie pentru fiecare apartament.
Spații verzi
Spațiu verde amenajat și loc de joacă pentru copii.
Galerie foto
Imagini reale cu stadiul actual al ansamblului, completate de etapele importante de construcție.
Vederi exterioare și interioare care surprind modul în care arată în prezent ansamblul Mr Lucass Residence.
Exterior


Interior








Câteva dintre momentele-cheie din execuția proiectului, de la pregătirea terenului până la structura etajelor.
mar. 2023
Curățarea terenului și realizarea săpăturilor pentru fundații, primul pas în construirea ansamblului.

mar. 2023
Realizarea fundațiilor și a radierului general: armare și turnare beton pentru baza structurii.

apr. 2023
Aplicarea hidroizolației la fundații și realizarea umpluturilor compactate, pentru protecție și stabilitate.

iun. 2023
Turnarea plăcii de pardoseală la parter și finalizarea straturilor de protecție la sol, pregătind clădirea pentru ridicarea etajelor.

ian. 2024
Armarea și turnarea plăcilor superioare, inclusiv placa etajului 3, marcând avansul major al structurii clădirii.

Ofertă apartamente
Ansamblul Mr Lucass Residence oferă apartamente de 2 și 3 camere, precum și un studio, cu compartimentări moderne, suprafețe echilibrate și balcon generos. Vezi detaliile fiecărei unități și contactează-ne pentru vizionări.
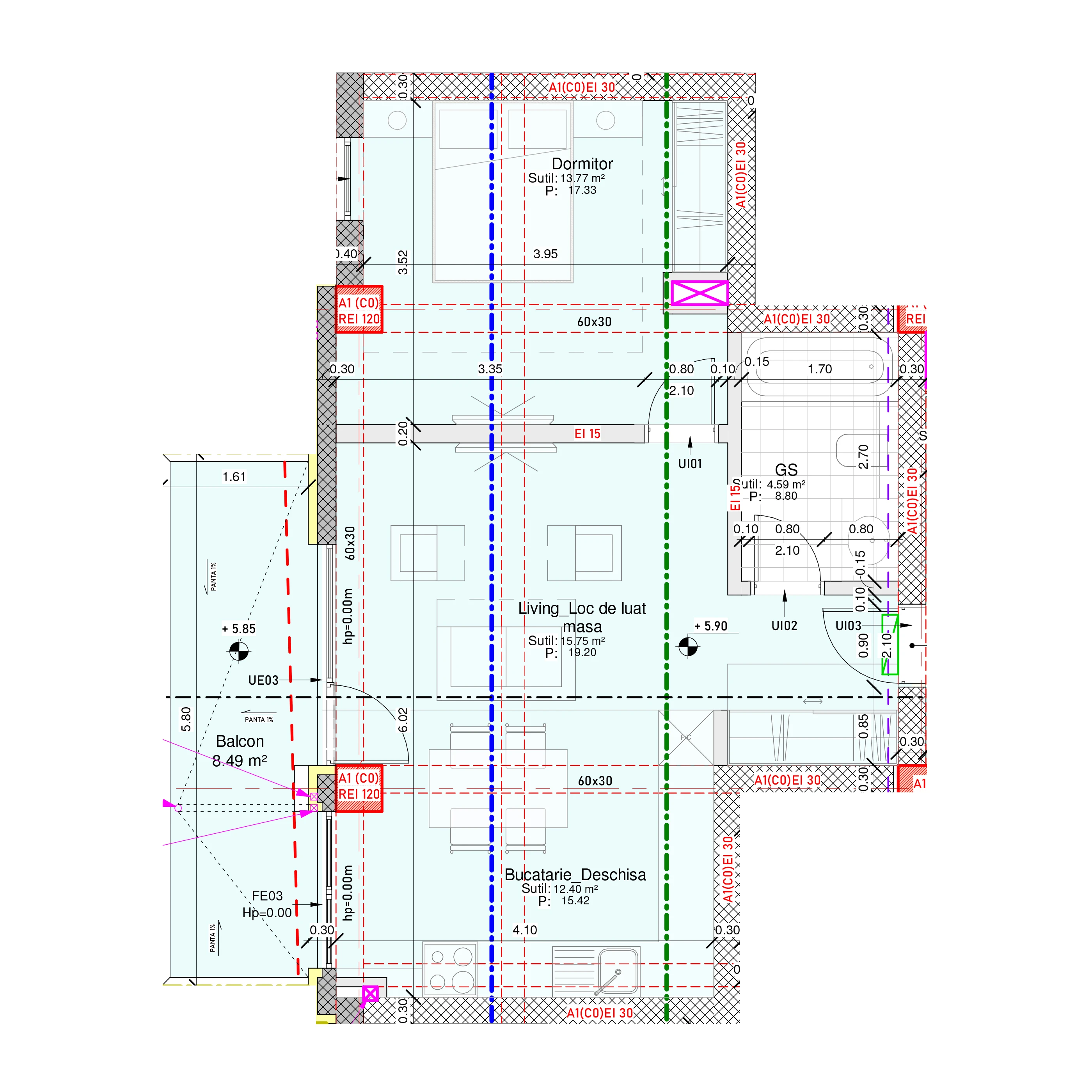
Apartamente de 2 camere, potrivite pentru cupluri sau familii la început de drum, cu suprafețe eficiente și compartimentări moderne.

Etaj 1 • Vedere laterală
55.00 m² utili (8.49 m² balcon inclus)
110.000 € + TVA

Etaj 2 • Vedere laterală
55.00 m² utili (8.49 m² balcon inclus)
110.000 € + TVA
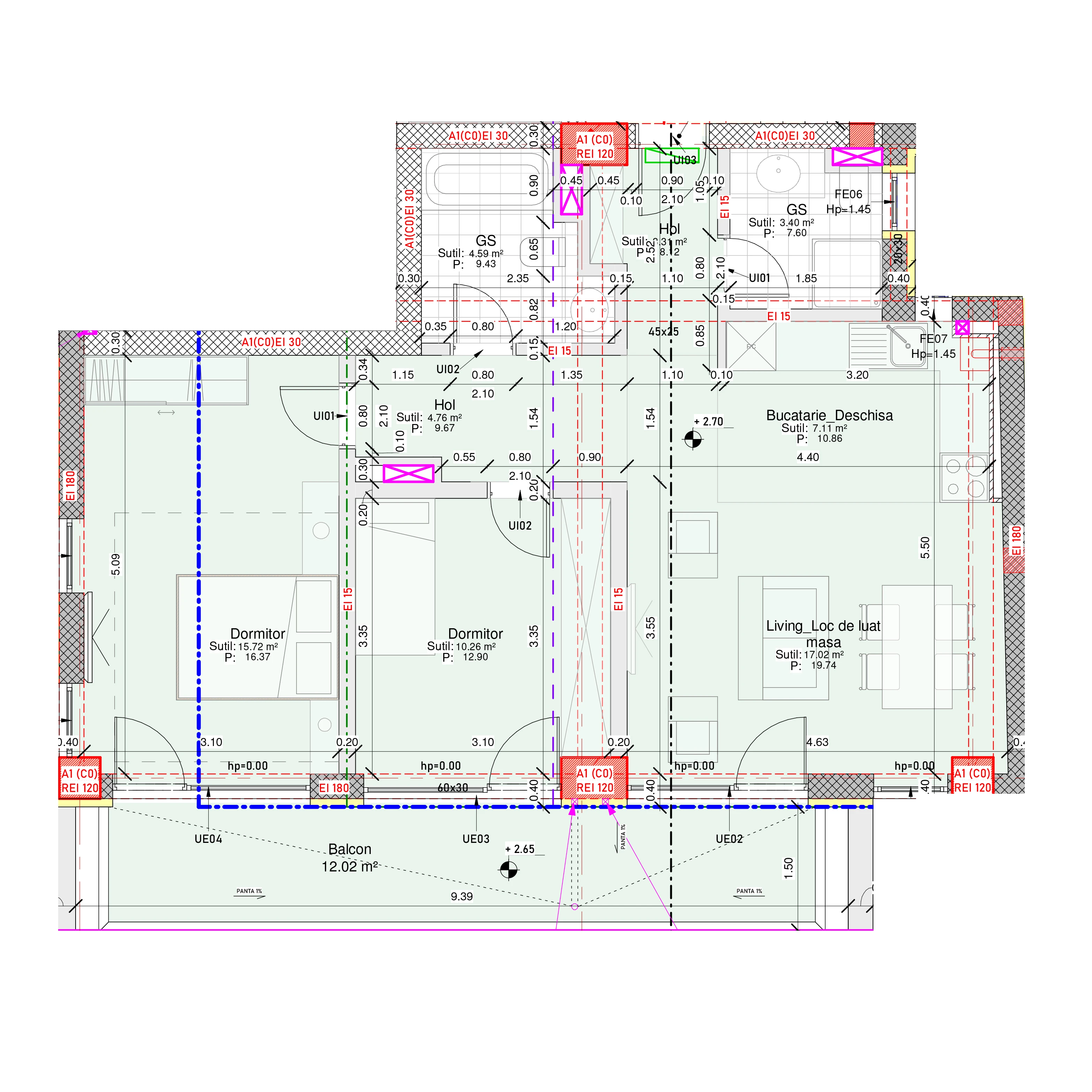
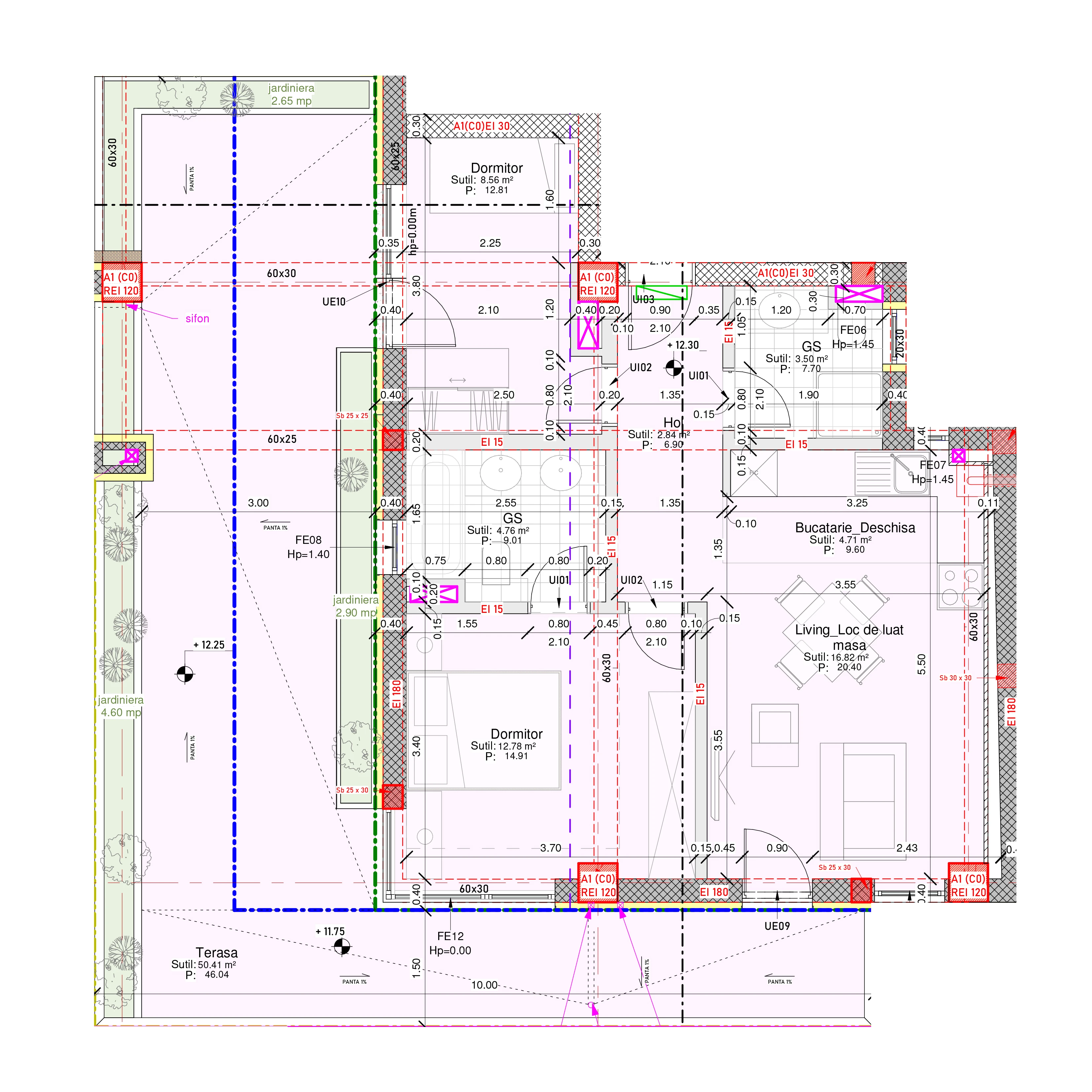
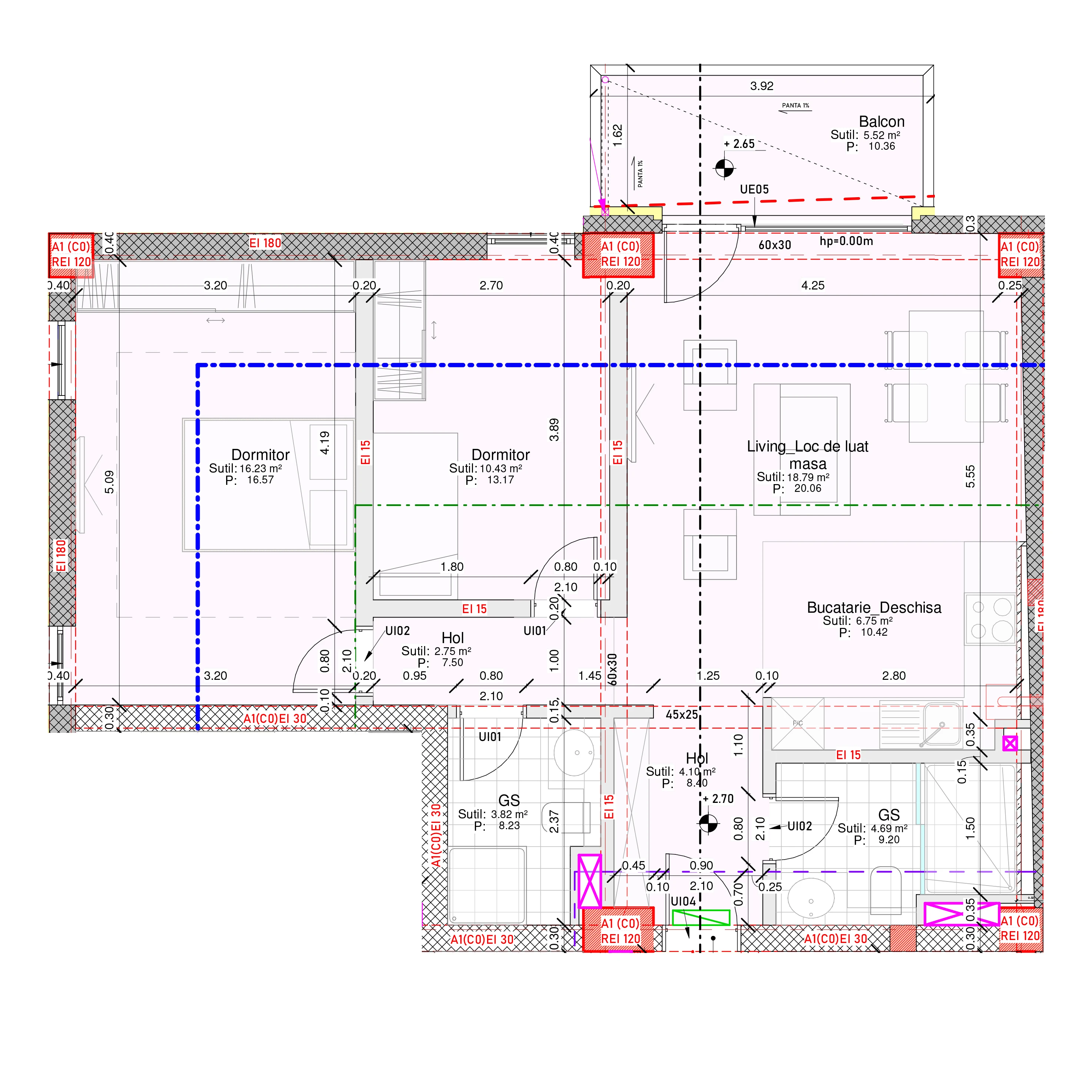
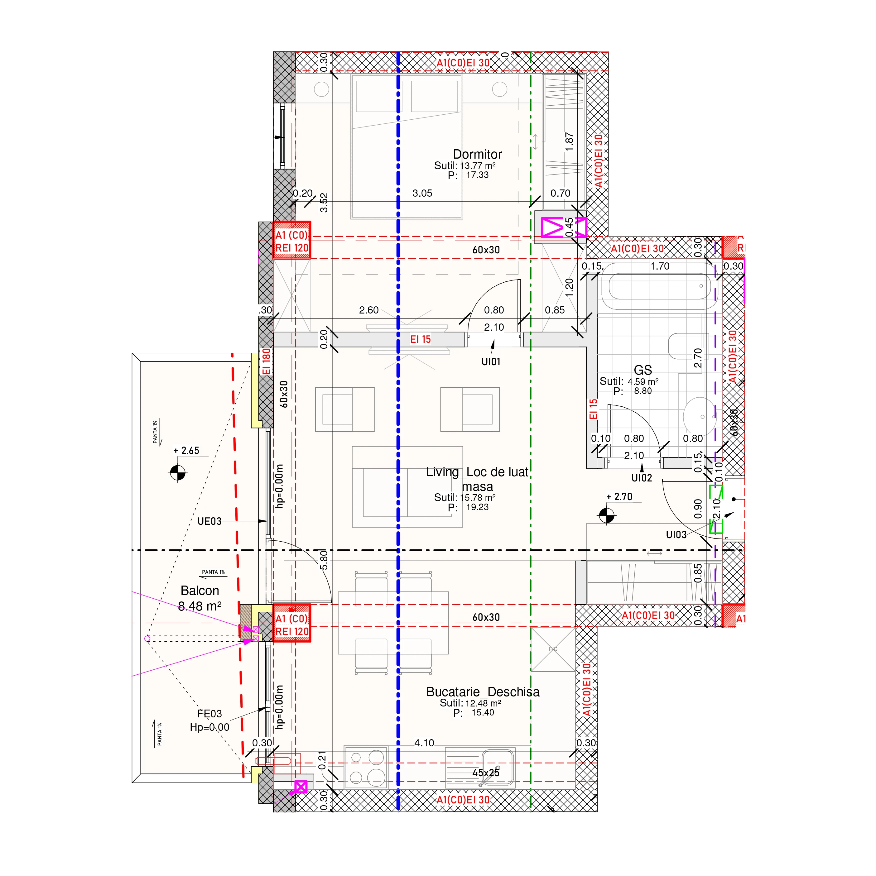
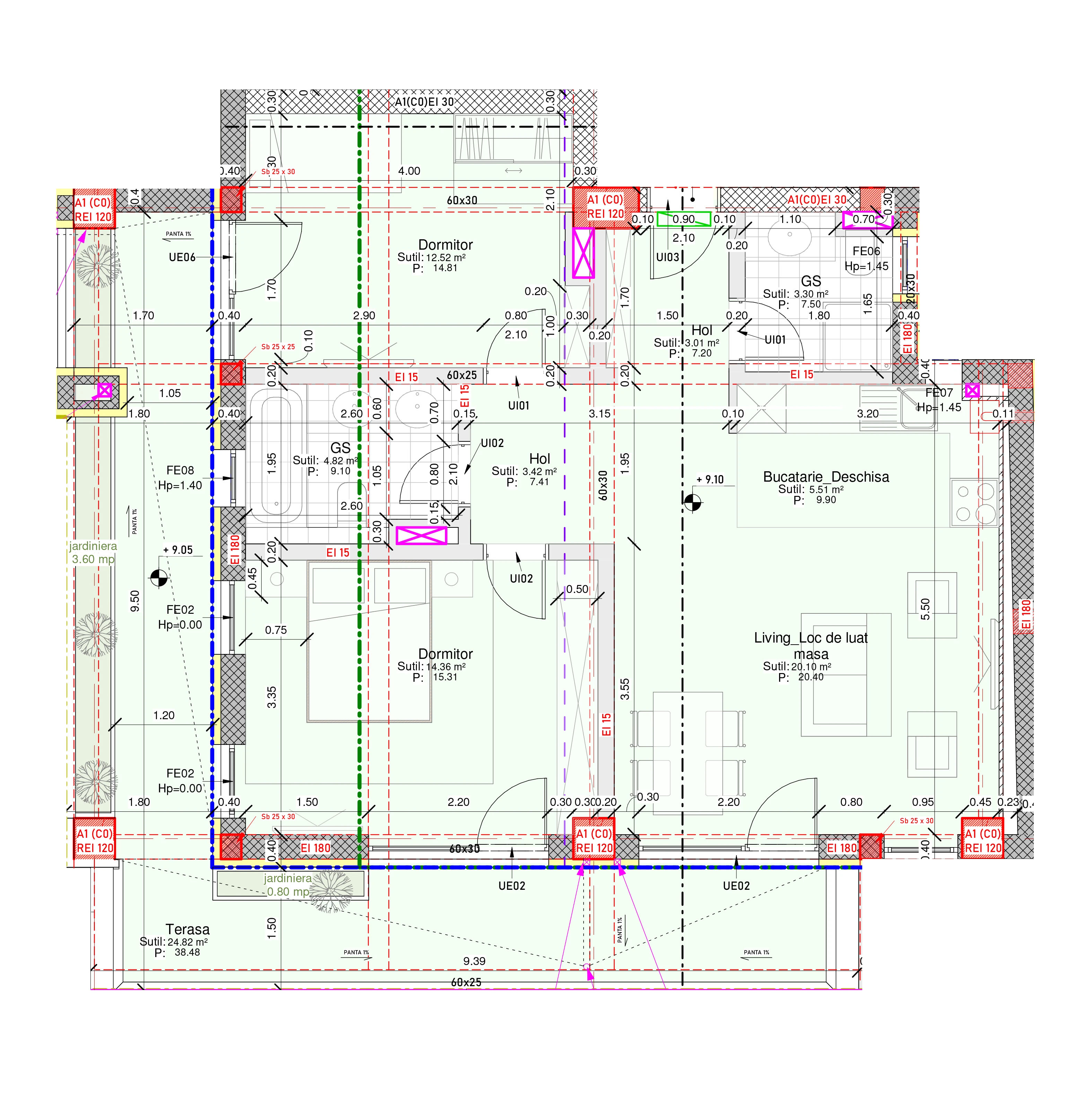
Apartamente de 3 camere, ideale pentru familii care își doresc mai mult spațiu și confort, cu living generos și dormitoare luminoase.

Etaj 1 • Vedere stradală
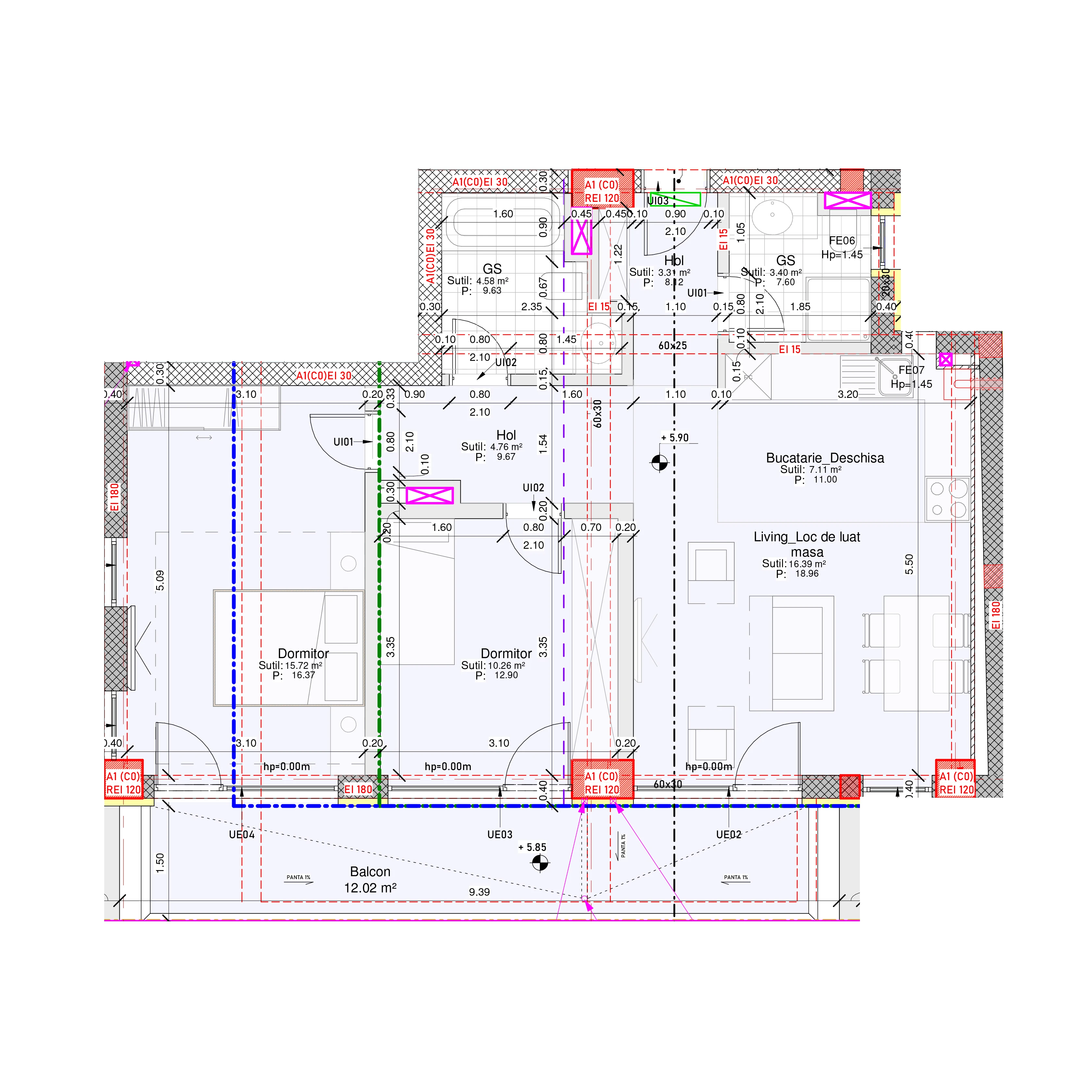
77.55 m² utili (12.02 m² balcon inclus)
171.000 € + TVA

Etaj 2 • Vedere spate
73.10 m² utili (5.52 m² balcon inclus)
147.000 € + TVA

Etaj 2 • Vedere stradală
77.55 m² utili (12.02 m² balcon inclus)
171.000 € + TVA

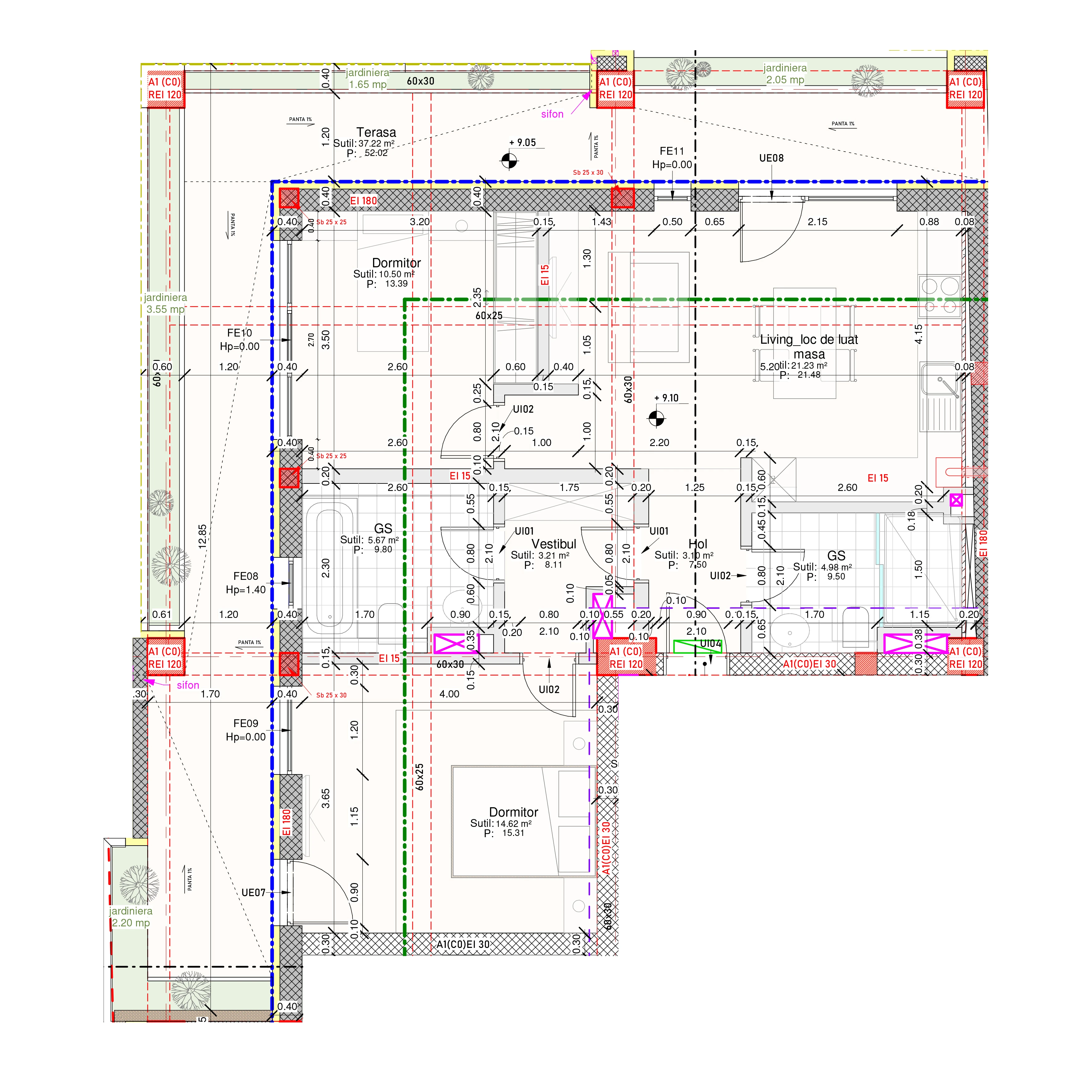
Etaj 3 • Vedere spate
60.85 m² utili + 37.22 m² balcon
160.000 € + TVA

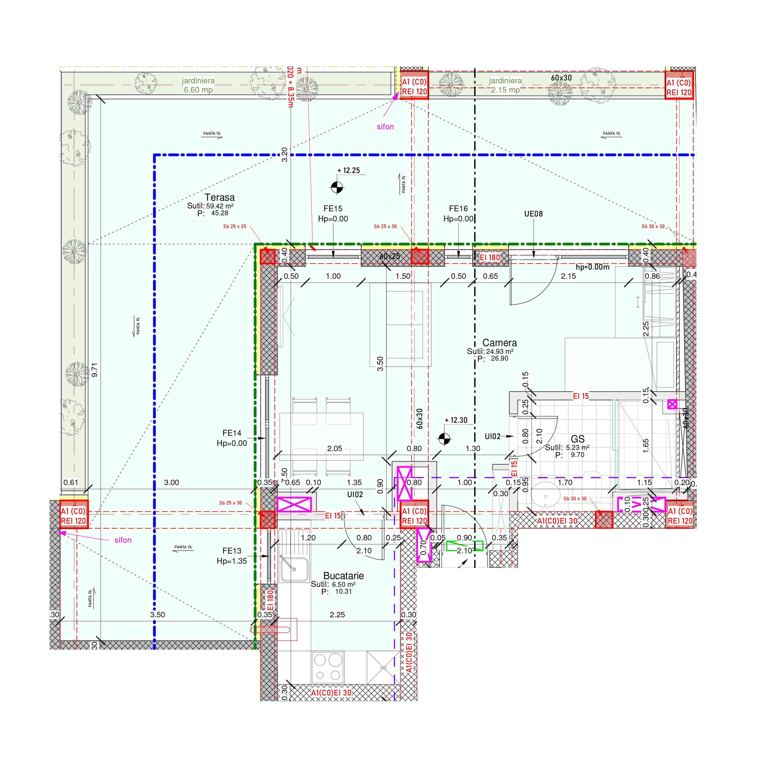
Etaj 4 • Vedere stradală
53.96 m² utili + 50.00 m² balcon
169.000 € + TVA

Etaj 1 • Vedere spate
73.10 m² utili (5.52 m² balcon inclus)

Etaj 3 • Vedere stradală
67.04 m² utili + 24.82 m² balcon
Garsonieră/studio, o alegere excelentă pentru investitori sau pentru cei care își doresc un spațiu compact și bine organizat.

Etaj 4 • Vedere spate
36.66 m² utili + 60.00 m² balcon
134.000 € + TVA
Contact
Suntem disponibili telefonic pentru detalii despre apartamente și programarea unei vizionări la ansamblul Mr Lucass Residence.
Pentru informații despre apartamente și programarea unei vizionări, ne poți contacta telefonic sau prin WhatsApp.
Telefon
Ansamblul este situat în zona Palazu Mare, cu acces facil către principalele puncte de interes din Constanța.